EL ESTUDIO
C.V.
ARQUITECTURA
+
Contacto
EL ESTUDIO
C.V.
ARQUITECTURA
+
Contacto
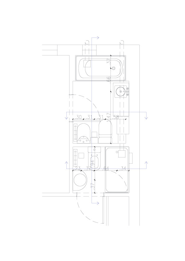
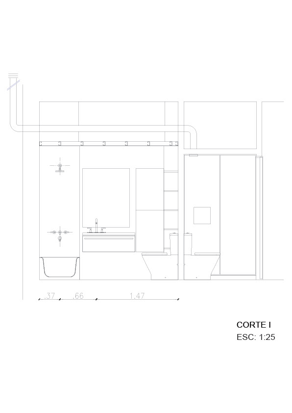
Reforma PH Familia Ghirardelli/Schilman
Proyecto, dirección y construcción de reforma de PH para la Familia Ghirardelli/Schilman. 85 m2
↑
Back to Top